ルームプラン
ROOM PLAN
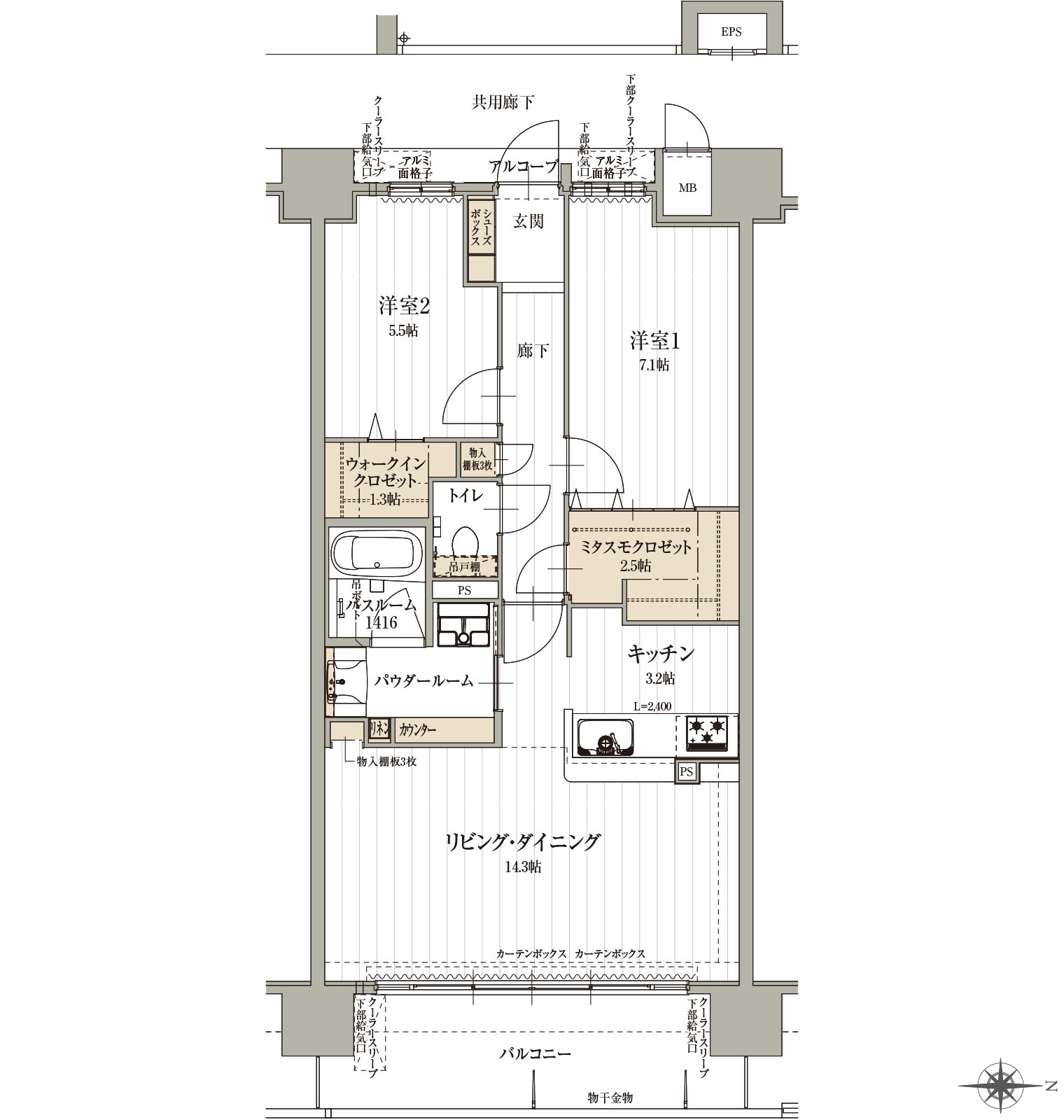
■専有面積/
71.35
㎡
(約21.58坪)
- アルコーブ面積/
- 02.47㎡(0.74坪)
- バルコニー面積/
- 11.16㎡(3.37坪)
- 総 面 積/
- 84.98㎡(25.69坪)
- ◎約14.3帖の広々リビング・ダイニング
- ◎ミタスモクロゼットと
ウォークインクロゼットで
使いやすい充実収納 - ◎バルコニー面のリビング・ダイニングは
開放感のある全面サッシ - ◎カウンターのあるゆったりとした
パウダールーム
ANABUKI ORIGINAL PLAN
mi+mo(ミタスモ)とはご家族にとって、
より快適な暮らしのために細やかな工夫をプラスし、
「暮らしを満たす、もっと満たす」をコンセプトにした、
あなぶきオリジナルの新しい住まいのカタチ。
mi+mo[ミタスモ]クロゼット
収納力の高いウォークインクロゼットに
ポールや棚板を増やし機能性をプラス。
収納の枠を超えて、
使いやすさにこだわりました。
※掲載の図面は行政官庁の指導または施工上の都合により、設計・設備・仕様・色調等の変更がある場合がございます。予めご了承ください。















