ルームプラン
ROOM PLAN
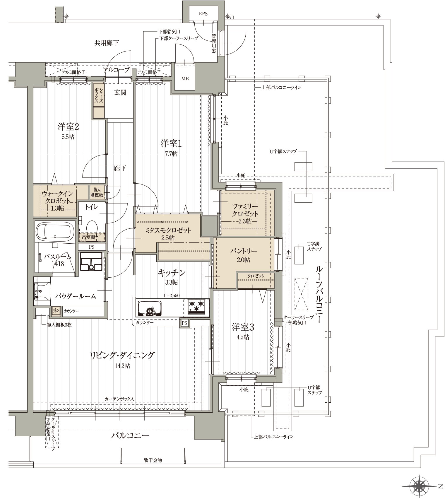
■専有面積/
88.32
㎡
(約26.71坪)
- アルコーブ面積/
- 02.47㎡(0.74坪)
- バルコニー面積/
- 11.99㎡(3.62坪)
- ルーフバルコニー面積/
- 30.50㎡(9.22坪)
- 総 面 積/
- 133.28㎡(40.29坪)
◎三面採光で明るく快適な角住戸
◎機能性をプラスした収納力の高い
ミタスモクロゼット
ミタスモクロゼット
◎14.2帖の広々リビング・ダイニング
◎7.7帖の洋室には大容量の
窓付ファミリークロゼット
窓付ファミリークロゼット
◎30㎡以上の贅沢なルーフバルコニー
ANABUKI ORIGINAL PLAN
mi+mo(ミタスモ)とはご家族にとって、
より快適な暮らしのために細やかな工夫をプラスし、
「暮らしを満たす、もっと満たす」をコンセプトにした、
あなぶきオリジナルの新しい住まいのカタチ。
mi+mo[ミタスモ]クロゼット
収納力の高いウォークインクロゼットに
ポールや棚板を増やし機能性をプラス。
収納の枠を超えて、
使いやすさにこだわりました。
※掲載の図面は行政官庁の指導または施工上の都合により、設計・設備・仕様・色調等の変更がある場合がございます。予めご了承ください。















