予告広告
本物件は販売を開始するまで契約及び予約は出来ません。
2026年5月中旬販売開始予定
本広告は「アルファ藤枝駅前ザ・タワー」公式サイトにて2026年5月中旬(予定)に実施します。
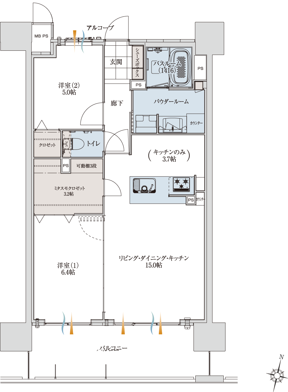
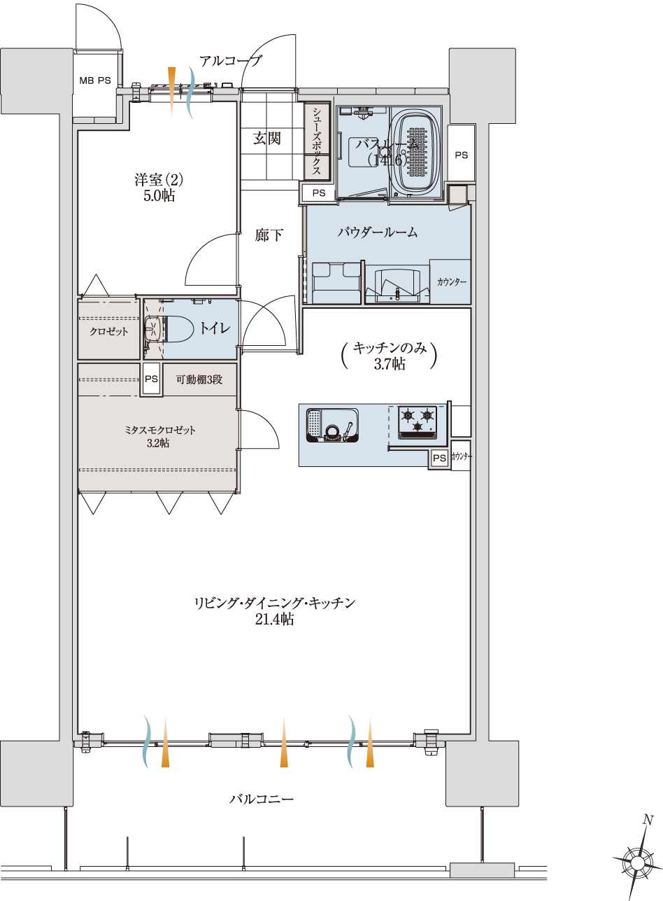
ROOM PLAN
間取り
標準
プラン
メニュー
プラン1
メニュー
プラン2
メニュー
プラン3
SUPERIOR
【3-17F】
スーペリアプラン
PREMIUM
【18-20F】
プレミアムプラン
EXECUTIVE
【21F】
エグゼクティブプラン
[3F]
住居専有面積/64.77㎡(19.59坪)
アルコーブ面積/3.65㎡(1.10坪)
バルコニー面積/16.12㎡(4.87坪)
[4F~21F]
住居専有面積/64.77㎡(19.59坪)
アルコーブ面積/3.65㎡(1.10坪)
バルコニー面積/12.90㎡(3.90坪)
家具レイアウト無し
家具レイアウト有り


[3F]
住居専有面積/64.77㎡(19.59坪)
アルコーブ面積/3.65㎡(1.10坪)
バルコニー面積/16.12㎡(4.87坪)
[4F~21F]
住居専有面積/64.77㎡(19.59坪)
アルコーブ面積/3.65㎡(1.10坪)
バルコニー面積/12.90㎡(3.90坪)
家具レイアウト無し
家具レイアウト有り


Kitchen
-

Zシンク
キッチンシンクは水跳ね音を抑えた低騒音設計で、鍋も楽々洗える大型サイズを採用しました。
-

-
参考写真 浄水機能付き水栓
使いやすくお掃除もらくらく。シャワー・ストレートの2つの水形が切り替えられる浄水機能付き水栓。
-

フィオレストーン
カウンタートップキッチンのカウンタートップには、耐久性にすぐれた人造石(フィオレストーン)を採用。機能美あふれるデザインです。
Bathroom
■浴室の壁面は下記の4種類からお選びいただけます。[期間限定]
-
-
ブライトマーブルホワイト -
ブライトロックストーンホワイト -
ブライトマーブルダークグレー -
マットロックストーングレー
-
-
-
参考写真 シャワーヘッド
洗浄力と節水力を両立したシャワーヘッドです。
-
参考写真 とるピカスリムカウンター
汚れが気になるカウンターの裏側などをお掃除しやすいように、簡単に取り外しができるカウンターです。
-
参考写真 タテ長ミラー
入浴中に全身を映すことができます。幅が狭いため、お手入れもしやすいデザインです。
-
Powder Room
-
※参考写真 -
-

エコレバー水栓
シャワー吐水・泡沫吐水をワンプッシュで簡単切り替え。水栓は引き出して使うことができるほか、収まった状態でも左右30°振れるので便利です。
-

プリンセスミラー三面鏡
縦型の高演色LED照明が正面から顔全体を照らので、鏡に映る顔に影が出来にくく、自然な発色でメイクや顔色がチェックできます。
-

-
ガス衣類乾燥機
「乾太くん」
〈DELUXE TYPE〉パワフルなガスの温風によるスピード乾燥を実現。ガスならではの、ふっくらやわらかな仕上がりです。
-
[3F]
住居専有面積/64.77㎡(19.59坪)
アルコーブ面積/3.65㎡(1.10坪)
バルコニー面積/16.12㎡(4.87坪)
[4F~21F]
住居専有面積/64.77㎡(19.59坪)
アルコーブ面積/3.65㎡(1.10坪)
バルコニー面積/12.90㎡(3.90坪)
家具レイアウト無し
家具レイアウト有り


Kitchen
-

ユーティリティEシンク
3層構造で生まれるシンクのスペースを活用し、「洗う・切る・捨てる」の作業をスムーズにでき、調理効率がアップします。
-

-
参考写真 浄水機能付き水栓
使いやすくお掃除もらくらく。シャワー・ストレートの2つの水形が切り替えられる浄水機能付き水栓。
-

フィオレストーン
カウンタートップキッチンのカウンタートップには、耐久性にすぐれた人造石(フィオレストーン)を採用。機能美あふれるデザインです。
Bathroom
-

-
-
参考写真 人造大理石「グランザ」
アクリル鏡面仕上げの透明層と柔らかく光を通す半透明層により、上質な深みと奥行きのある輝きを放ちます。
-

サーモ水栓
お子様からご年配の方まで温度調節が手軽にでき、一定の温度で安心して使えるサーモ機能付きです。
-
imge まるごと保温
浴槽に加え、天井、壁、床に保温材をプラスし、空間をまるごと保温します。入浴中の心地よさはもちろん、省エネ効果も期待できます。
-

グランフロア
※浴室サイズにより仕様が異なります。落ちついた木目柄や高級感あふれる石目柄を長尺張りにした床。浴室内を、足元から演出します。
-
-
-

キレイ鏡
特殊コーティングで水や汚れがついてもサッと落とし、いつもキレイな状態を保てます。
-

ライン照明
壁面をやわらかく照らし、空間に奥行き感を与えるライン照明を採用しています。
-

スイッチ付シャワーヘッド
たっぷりの空気を含んだ大粒の水滴が心地よいシャワーです。手元に止水スイッチが付いて節水にも役立ちます。
-

ドレッサーカウンター
水はけのよいシンプルデザインでお掃除しやすく、カウンターをいつもキレイにできます。
-

ヘッドレスト

浴槽内握りバー
-
Powder Room
-
※写真はモデルルームを撮影したもので、標準仕様の設備とは異なります。 -
-

人造石トップ
洗面カウンタートップには、耐久性にすぐれた人造石(フィオレストーン)を採用。ボウル一体型なので、汚れにくくお手入れも簡単です。
-

オレフィンシート貼
四方細框付き三面鏡大型三面鏡の裏側にたっぷりな収納スペースを確保。コンセントも設け、ドライヤーや電動歯ブラシも収納できます。
-

-
ガス衣類乾燥機
「乾太くん」
〈DELUXE TYPE〉パワフルなガスの温風によるスピード乾燥を実現。ガスならではの、ふっくらやわらかな仕上がりです。
-
SUPERIOR
【3-17F】
スーペリアプラン
PREMIUM
【18-20F】
プレミアムプラン
EXECUTIVE
【21F】
エグゼクティブプラン
[3F]
住居専有面積/64.77㎡(19.59坪)
アルコーブ面積/3.65㎡(1.10坪)
バルコニー面積/16.12㎡(4.87坪)
[4F~21F]
住居専有面積/64.77㎡(19.59坪)
アルコーブ面積/3.65㎡(1.10坪)
バルコニー面積/12.90㎡(3.90坪)

[3F]
住居専有面積/64.77㎡(19.59坪)
アルコーブ面積/3.65㎡(1.10坪)
バルコニー面積/16.12㎡(4.87坪)
[4F~21F]
住居専有面積/64.77㎡(19.59坪)
アルコーブ面積/3.65㎡(1.10坪)
バルコニー面積/12.90㎡(3.90坪)

Kitchen
-

Zシンク
キッチンシンクは水跳ね音を抑えた低騒音設計で、鍋も楽々洗える大型サイズを採用しました。
-

-
参考写真 浄水機能付き水栓
使いやすくお掃除もらくらく。シャワー・ストレートの2つの水形が切り替えられる浄水機能付き水栓。
-

フィオレストーン
カウンタートップキッチンのカウンタートップには、耐久性にすぐれた人造石(フィオレストーン)を採用。機能美あふれるデザインです。
Bathroom
■浴室の壁面は下記の4種類からお選びいただけます。[期間限定]
-
-
ブライトマーブルホワイト -
ブライトロックストーンホワイト -
ブライトマーブルダークグレー -
マットロックストーングレー
-
-
-
参考写真 シャワーヘッド
洗浄力と節水力を両立したシャワーヘッドです。
-
参考写真 とるピカスリムカウンター
汚れが気になるカウンターの裏側などをお掃除しやすいように、簡単に取り外しができるカウンターです。
-
参考写真 タテ長ミラー
入浴中に全身を映すことができます。幅が狭いため、お手入れもしやすいデザインです。
-
Powder Room
-
※参考写真 -
-

エコレバー水栓
シャワー吐水・泡沫吐水をワンプッシュで簡単切り替え。水栓は引き出して使うことができるほか、収まった状態でも左右30°振れるので便利です。
-

プリンセスミラー三面鏡
縦型の高演色LED照明が正面から顔全体を照らので、鏡に映る顔に影が出来にくく、自然な発色でメイクや顔色がチェックできます。
-

-
ガス衣類乾燥機
「乾太くん」
〈DELUXE TYPE〉パワフルなガスの温風によるスピード乾燥を実現。ガスならではの、ふっくらやわらかな仕上がりです。
-
[3F]
住居専有面積/64.77㎡(19.59坪)
アルコーブ面積/3.65㎡(1.10坪)
バルコニー面積/16.12㎡(4.87坪)
[4F~21F]
住居専有面積/64.77㎡(19.59坪)
アルコーブ面積/3.65㎡(1.10坪)
バルコニー面積/12.90㎡(3.90坪)

Kitchen
-

ユーティリティEシンク
3層構造で生まれるシンクのスペースを活用し、「洗う・切る・捨てる」の作業をスムーズにでき、調理効率がアップします。
-

-
参考写真 浄水機能付き水栓
使いやすくお掃除もらくらく。シャワー・ストレートの2つの水形が切り替えられる浄水機能付き水栓。
-

フィオレストーン
カウンタートップキッチンのカウンタートップには、耐久性にすぐれた人造石(フィオレストーン)を採用。機能美あふれるデザインです。
Bathroom
-

-
-
参考写真 人造大理石「グランザ」
アクリル鏡面仕上げの透明層と柔らかく光を通す半透明層により、上質な深みと奥行きのある輝きを放ちます。
-

サーモ水栓
お子様からご年配の方まで温度調節が手軽にでき、一定の温度で安心して使えるサーモ機能付きです。
-
imge まるごと保温
浴槽に加え、天井、壁、床に保温材をプラスし、空間をまるごと保温します。入浴中の心地よさはもちろん、省エネ効果も期待できます。
-

グランフロア
※浴室サイズにより仕様が異なります。落ちついた木目柄や高級感あふれる石目柄を長尺張りにした床。浴室内を、足元から演出します。
-
-
-

キレイ鏡
特殊コーティングで水や汚れがついてもサッと落とし、いつもキレイな状態を保てます。
-

ライン照明
壁面をやわらかく照らし、空間に奥行き感を与えるライン照明を採用しています。
-

スイッチ付シャワーヘッド
たっぷりの空気を含んだ大粒の水滴が心地よいシャワーです。手元に止水スイッチが付いて節水にも役立ちます。
-

ドレッサーカウンター
水はけのよいシンプルデザインでお掃除しやすく、カウンターをいつもキレイにできます。
-

ヘッドレスト

浴槽内握りバー
-
Powder Room
-
※写真はモデルルームを撮影したもので、標準仕様の設備とは異なります。 -
-

人造石トップ
洗面カウンタートップには、耐久性にすぐれた人造石(フィオレストーン)を採用。ボウル一体型なので、汚れにくくお手入れも簡単です。
-

オレフィンシート貼
四方細框付き三面鏡大型三面鏡の裏側にたっぷりな収納スペースを確保。コンセントも設け、ドライヤーや電動歯ブラシも収納できます。
-

-
ガス衣類乾燥機
「乾太くん」
〈DELUXE TYPE〉パワフルなガスの温風によるスピード乾燥を実現。ガスならではの、ふっくらやわらかな仕上がりです。
-
SUPERIOR
【3-17F】
スーペリアプラン
PREMIUM
【18-20F】
プレミアムプラン
EXECUTIVE
【21F】
エグゼクティブプラン
[3F]
住居専有面積/64.77㎡(19.59坪)
アルコーブ面積/3.65㎡(1.10坪)
バルコニー面積/16.12㎡(4.87坪)
[4F~21F]
住居専有面積/64.77㎡(19.59坪)
アルコーブ面積/3.65㎡(1.10坪)
バルコニー面積/12.90㎡(3.90坪)

[3F]
住居専有面積/64.77㎡(19.59坪)
アルコーブ面積/3.65㎡(1.10坪)
バルコニー面積/16.12㎡(4.87坪)
[4F~21F]
住居専有面積/64.77㎡(19.59坪)
アルコーブ面積/3.65㎡(1.10坪)
バルコニー面積/12.90㎡(3.90坪)

Kitchen
-

Zシンク
キッチンシンクは水跳ね音を抑えた低騒音設計で、鍋も楽々洗える大型サイズを採用しました。
-

-
参考写真 浄水機能付き水栓
使いやすくお掃除もらくらく。シャワー・ストレートの2つの水形が切り替えられる浄水機能付き水栓。
-

フィオレストーン
カウンタートップキッチンのカウンタートップには、耐久性にすぐれた人造石(フィオレストーン)を採用。機能美あふれるデザインです。
Bathroom
■浴室の壁面は下記の4種類からお選びいただけます。[期間限定]
-
-
ブライトマーブルホワイト -
ブライトロックストーンホワイト -
ブライトマーブルダークグレー -
マットロックストーングレー
-
-
-
参考写真 シャワーヘッド
洗浄力と節水力を両立したシャワーヘッドです。
-
参考写真 とるピカスリムカウンター
汚れが気になるカウンターの裏側などをお掃除しやすいように、簡単に取り外しができるカウンターです。
-
参考写真 タテ長ミラー
入浴中に全身を映すことができます。幅が狭いため、お手入れもしやすいデザインです。
-
Powder Room
-
※参考写真 -
-

エコレバー水栓
シャワー吐水・泡沫吐水をワンプッシュで簡単切り替え。水栓は引き出して使うことができるほか、収まった状態でも左右30°振れるので便利です。
-

プリンセスミラー三面鏡
縦型の高演色LED照明が正面から顔全体を照らので、鏡に映る顔に影が出来にくく、自然な発色でメイクや顔色がチェックできます。
-

-
ガス衣類乾燥機
「乾太くん」
〈DELUXE TYPE〉パワフルなガスの温風によるスピード乾燥を実現。ガスならではの、ふっくらやわらかな仕上がりです。
-
[3F]
住居専有面積/64.77㎡(19.59坪)
アルコーブ面積/3.65㎡(1.10坪)
バルコニー面積/16.12㎡(4.87坪)
[4F~21F]
住居専有面積/64.77㎡(19.59坪)
アルコーブ面積/3.65㎡(1.10坪)
バルコニー面積/12.90㎡(3.90坪)

Kitchen
-

ユーティリティEシンク
3層構造で生まれるシンクのスペースを活用し、「洗う・切る・捨てる」の作業をスムーズにでき、調理効率がアップします。
-

-
参考写真 浄水機能付き水栓
使いやすくお掃除もらくらく。シャワー・ストレートの2つの水形が切り替えられる浄水機能付き水栓。
-

フィオレストーン
カウンタートップキッチンのカウンタートップには、耐久性にすぐれた人造石(フィオレストーン)を採用。機能美あふれるデザインです。
Bathroom
-

-
-
参考写真 人造大理石「グランザ」
アクリル鏡面仕上げの透明層と柔らかく光を通す半透明層により、上質な深みと奥行きのある輝きを放ちます。
-

サーモ水栓
お子様からご年配の方まで温度調節が手軽にでき、一定の温度で安心して使えるサーモ機能付きです。
-
imge まるごと保温
浴槽に加え、天井、壁、床に保温材をプラスし、空間をまるごと保温します。入浴中の心地よさはもちろん、省エネ効果も期待できます。
-

グランフロア
※浴室サイズにより仕様が異なります。落ちついた木目柄や高級感あふれる石目柄を長尺張りにした床。浴室内を、足元から演出します。
-
-
-

キレイ鏡
特殊コーティングで水や汚れがついてもサッと落とし、いつもキレイな状態を保てます。
-

ライン照明
壁面をやわらかく照らし、空間に奥行き感を与えるライン照明を採用しています。
-

スイッチ付シャワーヘッド
たっぷりの空気を含んだ大粒の水滴が心地よいシャワーです。手元に止水スイッチが付いて節水にも役立ちます。
-

ドレッサーカウンター
水はけのよいシンプルデザインでお掃除しやすく、カウンターをいつもキレイにできます。
-

ヘッドレスト

浴槽内握りバー
-
Powder Room
-
※写真はモデルルームを撮影したもので、標準仕様の設備とは異なります。 -
-

人造石トップ
洗面カウンタートップには、耐久性にすぐれた人造石(フィオレストーン)を採用。ボウル一体型なので、汚れにくくお手入れも簡単です。
-

オレフィンシート貼
四方細框付き三面鏡大型三面鏡の裏側にたっぷりな収納スペースを確保。コンセントも設け、ドライヤーや電動歯ブラシも収納できます。
-

-
ガス衣類乾燥機
「乾太くん」
〈DELUXE TYPE〉パワフルなガスの温風によるスピード乾燥を実現。ガスならではの、ふっくらやわらかな仕上がりです。
-
SUPERIOR
【3-17F】
スーペリアプラン
PREMIUM
【18-20F】
プレミアムプラン
EXECUTIVE
【21F】
エグゼクティブプラン
[3F]
住居専有面積/64.77㎡(19.59坪)
アルコーブ面積/3.65㎡(1.10坪)
バルコニー面積/16.12㎡(4.87坪)
[4F~21F]
住居専有面積/64.77㎡(19.59坪)
アルコーブ面積/3.65㎡(1.10坪)
バルコニー面積/12.90㎡(3.90坪)

[3F]
住居専有面積/64.77㎡(19.59坪)
アルコーブ面積/3.65㎡(1.10坪)
バルコニー面積/16.12㎡(4.87坪)
[4F~21F]
住居専有面積/64.77㎡(19.59坪)
アルコーブ面積/3.65㎡(1.10坪)
バルコニー面積/12.90㎡(3.90坪)

Kitchen
-

Zシンク
キッチンシンクは水跳ね音を抑えた低騒音設計で、鍋も楽々洗える大型サイズを採用しました。
-

-
参考写真 浄水機能付き水栓
使いやすくお掃除もらくらく。シャワー・ストレートの2つの水形が切り替えられる浄水機能付き水栓。
-

フィオレストーン
カウンタートップキッチンのカウンタートップには、耐久性にすぐれた人造石(フィオレストーン)を採用。機能美あふれるデザインです。
Bathroom
■浴室の壁面は下記の4種類からお選びいただけます。[期間限定]
-
-
ブライトマーブルホワイト -
ブライトロックストーンホワイト -
ブライトマーブルダークグレー -
マットロックストーングレー
-
-
-
参考写真 シャワーヘッド
洗浄力と節水力を両立したシャワーヘッドです。
-
参考写真 とるピカスリムカウンター
汚れが気になるカウンターの裏側などをお掃除しやすいように、簡単に取り外しができるカウンターです。
-
参考写真 タテ長ミラー
入浴中に全身を映すことができます。幅が狭いため、お手入れもしやすいデザインです。
-
Powder Room
-
※参考写真 -
-

エコレバー水栓
シャワー吐水・泡沫吐水をワンプッシュで簡単切り替え。水栓は引き出して使うことができるほか、収まった状態でも左右30°振れるので便利です。
-

プリンセスミラー三面鏡
縦型の高演色LED照明が正面から顔全体を照らので、鏡に映る顔に影が出来にくく、自然な発色でメイクや顔色がチェックできます。
-

-
ガス衣類乾燥機
「乾太くん」
〈DELUXE TYPE〉パワフルなガスの温風によるスピード乾燥を実現。ガスならではの、ふっくらやわらかな仕上がりです。
-
[3F]
住居専有面積/64.77㎡(19.59坪)
アルコーブ面積/3.65㎡(1.10坪)
バルコニー面積/16.12㎡(4.87坪)
[4F~21F]
住居専有面積/64.77㎡(19.59坪)
アルコーブ面積/3.65㎡(1.10坪)
バルコニー面積/12.90㎡(3.90坪)

Kitchen
-

ユーティリティEシンク
3層構造で生まれるシンクのスペースを活用し、「洗う・切る・捨てる」の作業をスムーズにでき、調理効率がアップします。
-

-
参考写真 浄水機能付き水栓
使いやすくお掃除もらくらく。シャワー・ストレートの2つの水形が切り替えられる浄水機能付き水栓。
-

フィオレストーン
カウンタートップキッチンのカウンタートップには、耐久性にすぐれた人造石(フィオレストーン)を採用。機能美あふれるデザインです。
Bathroom
-

-
-
参考写真 人造大理石「グランザ」
アクリル鏡面仕上げの透明層と柔らかく光を通す半透明層により、上質な深みと奥行きのある輝きを放ちます。
-

サーモ水栓
お子様からご年配の方まで温度調節が手軽にでき、一定の温度で安心して使えるサーモ機能付きです。
-
imge まるごと保温
浴槽に加え、天井、壁、床に保温材をプラスし、空間をまるごと保温します。入浴中の心地よさはもちろん、省エネ効果も期待できます。
-

グランフロア
※浴室サイズにより仕様が異なります。落ちついた木目柄や高級感あふれる石目柄を長尺張りにした床。浴室内を、足元から演出します。
-
-
-

キレイ鏡
特殊コーティングで水や汚れがついてもサッと落とし、いつもキレイな状態を保てます。
-

ライン照明
壁面をやわらかく照らし、空間に奥行き感を与えるライン照明を採用しています。
-

スイッチ付シャワーヘッド
たっぷりの空気を含んだ大粒の水滴が心地よいシャワーです。手元に止水スイッチが付いて節水にも役立ちます。
-

ドレッサーカウンター
水はけのよいシンプルデザインでお掃除しやすく、カウンターをいつもキレイにできます。
-

ヘッドレスト

浴槽内握りバー
-
Powder Room
-
※写真はモデルルームを撮影したもので、標準仕様の設備とは異なります。 -
-

人造石トップ
洗面カウンタートップには、耐久性にすぐれた人造石(フィオレストーン)を採用。ボウル一体型なので、汚れにくくお手入れも簡単です。
-

オレフィンシート貼
四方細框付き三面鏡大型三面鏡の裏側にたっぷりな収納スペースを確保。コンセントも設け、ドライヤーや電動歯ブラシも収納できます。
-

-
ガス衣類乾燥機
「乾太くん」
〈DELUXE TYPE〉パワフルなガスの温風によるスピード乾燥を実現。ガスならではの、ふっくらやわらかな仕上がりです。
-
ご返済例
Etype[605号室]
販売価格:3,900万円
(税込)
をご購入の場合
⬛︎ 借入金/3,900万円
⬛︎ PayPay銀行(当社提携ローン)
⬛︎ 0.949%(変動金利)
⬛︎ 40年返済
月々の
ご返済75,136円
ボーナス払い(年2回)
135,464円
■管理費・修繕積立金・災害積立金が別途必要となります。
■融資条件の詳細はスタッフまでお尋ね下さい。
※掲載の図面は、行政官庁の指導または施工上の都合により、設計・設備・仕様・色調等の変更がある場合がございます。予めご了承ください。
〈提携住宅ローン概要〉●お借入金額/500万円以上2億円以下(10万円単位)●お借入期間/1年以上50年以内※最大50年まで設定いただけますが、完済時満80歳未満であることが必要となります。●担保/借入対象物件(土地・建物)にPayPay銀行を第一順位とする抵当権を設定します。●事務取扱手数料/お借入時、お借入金額に対して2.20%(消費税含む)の事務手数料がかかります。●当社指定保険会社の団体信用生命保険に必ずご加入いただきます。保険料はがPayPay銀行負担します。※引受保険会社/団体信用生命保険:カーディフ生命保険㈱および、カーディフ損害保険㈱※PayPay銀行では、「返済額5年同一定ルール」ならびに「返済額見直し1.25%ルール」の取り扱いはございません。※掲載の返済例はご年齢・ご年収・既存のお借入れ状況等により実現できない場合があります。※掲載のローン概要は2026年4月時点のものです。※融資条件の詳細はスタッフまでお尋ね下さい。
※メニュープランには申込期限がございます。また有償対応となります。詳細についてはスタッフまでお尋ねください。
※メニュープランには申込期限がございます。また有償対応となります。詳細についてはスタッフまでお尋ねください。
※メニュープランには申込期限がございます。詳細についてはスタッフまでお尋ねください。
※メニュープランには申込期限がございます。また有償対応となります。詳細についてはスタッフまでお尋ねください。
※メニュープランには申込期限がございます。また有償対応となります。詳細についてはスタッフまでお尋ねください。
※掲載の図面は行政官庁の指導または施工上の都合により、設計・設備・仕様等の変更がある場合がございます。予めご了承ください。
予告広告
本物件は販売を開始するまで契約及び予約は出来ません。
2026年5月中旬販売開始予定
本広告は「アルファ藤枝駅前ザ・タワー」公式サイトにて2026年5月中旬(予定)に実施します。
ご覧のマンションや
エリアの
新着情報をメールでお届けします

アルファあなぶきStyleに会員登録して、
モデルルームオープンや販売状況の
お知らせをお見逃しなく!
ご希望エリアの新着マンション情報もお送りします。
※こちらはアルファあなぶきStyle会員登録専用フォームです。来場予約、資料請求、キャンセル待ち申込み等は、各フォームからお願いいたします。














